
工作原理、應用范圍
LXSJ型洗石機是利用物料不同粒度和密度的顆粒在流體中具有不同的沉降速度,粒度細、密度小的顆粒沉降速度慢,而粒度大密度大的顆粒沉降速度快的特性,將粉塵和雜質與石子分離開來,并在螺旋葉片的均勻攪動下,達到濾水去雜、提升輸送的目的。
洗石機廣泛應用于建材、礦山、水利、水電、交通、混凝土攪拌站、冶金等行業的洗選、除雜等作業。
特點
◎清洗與提升輸送同時進行,處理能力強。
◎出料含水量、含泥量低。
◎結構簡單,體積較小,便于布置安裝。
◎螺旋葉片采用耐磨耐沖擊高鉻鑄鐵制作,采用螺栓固定,易更換。
◎整機性能優越,使用壽命長,能耗低。
結構
洗石機由驅動裝置、殼體、螺旋體、支架、清水泵、排污泵、電控箱等組成。根據不同工藝要求可增設相關設施。
主要技術參數
規格型號
|
LXSJ630
|
LXSJ750
|
LXSJ915
|
處理能力(t/h)
|
30~40
|
50~70
|
70~90
|
直徑(mm)
|
630
|
750
|
915
|
轉速(r/min)
|
12~18
|
12~18
|
10~15
|
主機功率(kw)
|
7.5~11
|
11~15
|
15~18.5
|
洗石粒度(mm)
|
10~20
|
10~20
|
10~25
|
耗水量(m3/h)
|
50
|
70
|
80
|
安裝角度(°)
|
25 |
25 |
22
|
說明:清洗細石料訂貨前請注明粒度。
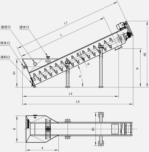
主機外形尺寸圖

|